






















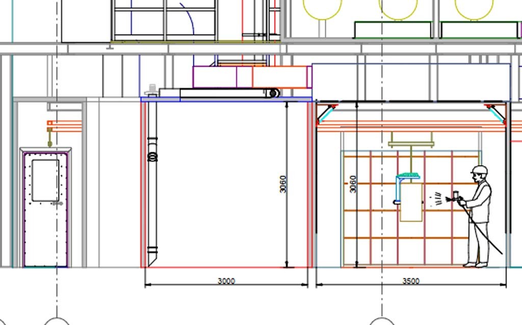
Hersteller des Lackierzentrums: Heimer Lackieranlagen und Industrielufttechnik GmbH & Co. KG in Deutschland
Baujahr des Lackierzentrums: 2016
Linie besteht aus: Lackierzentrum inkl. der Förderanlage der Firma „Schiermann“ und Systemsteuerung „Siemens“
Technische Daten des Lackierzentrums:
Hauptschalter: 160 A
Schutzart: 3 ̃PE/N
Spannung: 230/400 V
Frequenz: 50 Hz
Steuerspannung: 230 V AC / 24 V DC
Elektroanschluss: 160 A
Nennstrom: 99 A
Motorennennspannung: 230/400 V
Motorleistung: 45 kW
Motornennstrom: 90 A
Heizleistung: 140 kW
Schutzart: IP 54
Gesamtmaße der Anlage (L x B x H): Ca. 24000 x 12500 x 15000 mm
Zustand: Funktionstüchtig. Die Anlage ist noch nicht abgebaut. Die Lackierkabine und der Mischraum mit der dazugehörigen Abluftanlage werden nicht mitverkauft. Alles anderes, also der größte Teil (Steuerungstechnik, Fördertechnik, Heizungstechnik, Lüftungsanlage usw.), wird zum Kauf angeboten werden.
Verfügbarkeit: Ab sofort
Standort: Deutschland (Bundesland: Hessen)
Referenznummer: PRO4100